Warszawa, Ursynów, Kłobucka

Mieszkanie na sprzedaż

3 pokoje 3 piętro 67,85 m2 17 538,69 zł/m2

1 190 000 zł

oferta na wyłączność
Emilia M. Szymańska

Doradca

Opis nieruchomości

Na sprzedaż | 3-pokojowe mieszkanie 67,8 m² | ul. Kłobucka 6a, Warszawa

Cena: 1 190 000 zł
Miejsce postojowe + komórka lokatorska ( 6m2 obok mieszkania ): 70 000 zł

Funkcjonalne, jasne i gotowe do zamieszkania mieszkanie położone na 3. piętrze nowoczesnego, 4-piętrowego apartamentowca

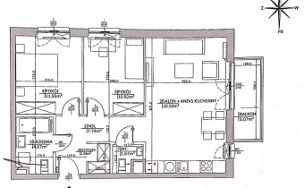
Układ :

  • salon z aneksem kuchennym – 26,5 m² (wyjście na balkon), okna od strony patio.

  • sypialnia – ok. 12 m²,

  • drugi pokój – ok. 11 m²,

  • hol – ok. 8 m²,

  • łazienka z prysznicem,

  • osobne WC,

  • garderoba.
    Dodatkowo balkon ok. 5 m².

Najważniejsze atuty:

  • bardzo funkcjonalny rozkład – wyraźny podział na strefę dzienną i prywatną,

  • duże okna, świetne doświetlenie,

  • wysoki standard wykończenia, neutralna kolorystyka,

  • w pełni wyposażona kuchnia (AGD),

  • liczne szafy + oddzielna garderoba,

  • mieszkanie zadbane, gotowe do wprowadzenia.

Garaż i komórka:

  • wygodne miejsce postojowe tuż przy windzie,

  • przestronna komórka lokatorska ok. 6 m², obok mieszkania.

Lokalizacja – Mokotów/Kłobucka:

  • autobus pod budynkiem, szybki dojazd do Galerii Mokotów i metra,

  • blisko sklepy, restauracje, usługi, przychodnia, szkoły i przedszkola,

  • tereny zielone, jeziorko, place zabaw, strefy rekreacyjne,

Kontakt

EMILIA M. SZYMAŃSKA
 660 865 803
 eszymanska@vestrahouse.pl

Nota prawna

Opis oferty zawarty na stronie internetowej sporządzany jest na podstawie oględzin nieruchomości oraz informacji uzyskanych od właściciela, może podlegać aktualizacji i nie stanowi oferty określonej w art. 66 i następnych K.C.

Szczegóły

Symbol oferty VES-MS-4621
Powierzchnia 67,85 m²
Powierzchnia użytkowa 67,85 m²
Powierzchnia balkonów/tarasów 5,07 m²
Liczba pokoi 3
Piętro 3
Rodzaj budynku apartamentowiec
Liczba pięter w budynku 4
Garaż garaż pod budynkiem
Piwnica 6,00 m²
Stan lokalu bardzo dobry
Stan prawny Odrębna własność lokalu
Mies. czynsz admin. 1 000 PLN
Okna PCV
Instalacje dobre
Balkon duży
Liczba balkonów 1
Rok budowy 2019
Widok na inne budynki
Woda ciepła - miejska
Otoczenie bloki
Ogrzewanie centralne
Winda tak
Usytuowanie narożne

Pomieszczenia

Wysokość pomieszczeń 2,70 m
Powierzchnia pokoi 27,12,11 m2
Podłogi pokoi panele
Typ kuchni aneks kuchenny połączony z jadalnią i salonem
Rodzaj kuchni aneks kuchenny - połączony z salonem
Typ łazienki razem z wc
Liczba łazienek 1
Powierzchnia łazienki 4,67 m2
Podłoga łazienki terakota
Wyposażenie łazienki kabina prysznicowa
Liczba WC 1
Powierzchnia WC 1,67 m2
Podłoga WC terakota
Liczba przedpokoi 1
Powierzchnia przedpokoi 7,74 m2
Podłoga przedpokoi panele

Podobne oferty

Mieszkanie na sprzedaż - Warszawa, Praga-Południe, Saska Kępa, Saska
mieszkanie na sprzedaż - Warszawa, Praga-Południe, Saska Kępa, Saska

VES-MS-4627

Warszawa, Praga-Południe,…
mieszkanie na sprzedaż

3 pokoje 66,53 m²

1 120 000
16 834,51 zł/m2
oferta na wyłączność
Dodaj
do notatnika
Mieszkanie na sprzedaż - Warszawa, Praga-Południe, Gocław, Konrada Guderskiego
mieszkanie na sprzedaż - Warszawa, Praga-Południe, Gocław, Konrada Guderskiego

VES-MS-4626

Warszawa, Praga-Południe,…
mieszkanie na sprzedaż

3 pokoje 61,60 m²

849 900
13 797,08 zł/m2
oferta na wyłączność
Dodaj
do notatnika
Mieszkanie na sprzedaż - Warszawa, Białołęka, Geodezyjna
mieszkanie na sprzedaż - Warszawa, Białołęka, Geodezyjna

VES-MS-4623

Warszawa, Białołęka,…
mieszkanie na sprzedaż

3 pokoje 82,20 m²

1 160 000
14 111,92 zł/m2
nowa oferta
Dodaj
do notatnika
Mieszkanie na sprzedaż - Warszawa, Śródmieście, Mokotowska
mieszkanie na sprzedaż - Warszawa, Śródmieście, Mokotowska

VES-MS-4605

Warszawa, Śródmieście,…
mieszkanie na sprzedaż

2 pokoje 35,58 m²

849 000
23 861,72 zł/m2
Dodaj
do notatnika
PLN
PLN
PLN
PLN
PLN
PLN
PLN
%
PLN
PLN
PLN

PLN

Uwaga: mogą wystąpić dodatkowe opłaty za założenie księgi wieczystej oraz ustanowienie hipoteki.

Dane:

PLN
%

Wynik:

PLN
pierwsza rata
ostatnia rata

Napisz do nas

Proszę wypełnić to pole
Proszę wypełnić to pole
Proszę wypełnić to pole
Proszę wypełnić to pole
Trwa wysyłanie...

Ta strona wykorzystuje pliki cookies w celach statystycznych oraz w celu dostosowania naszych serwisów do indywidualnych potrzeb klientów. Zmiany ustawień dotyczących plików cookie można dokonać w dowolnej chwili modyfikując ustawienia przeglądarki. Korzystanie z tej strony bez zmian ustawień dotyczących cookies oznacza, że będą one zapisane w pamięci urządzenia.

rozumiem