Warszawa, Mokotów, Puławska

Lokal do wynajęcia

1 piętro 321,50 m2 54,74 zł/m2

17 600 zł

nowa oferta
Emilia M. Szymańska

Doradca

Opis nieruchomości

Prywatne Piętro Biurowe 321 m² | Mokotów, ul. Puławska | Możliwość aranżacji i podziału

Oferujemy na wynajem nowoczesną powierzchnię biurową w kameralnym biurowcu klasy B+ przy ul. Puławskiej. To idealna propozycja dla firm ceniących bezpieczeństwo, nowoczesną infrastrukturę IT oraz doskonałą komunikację.

Kluczowe wyróżniki oferty:

  • Pełna prywatność: Biuro zajmuje całe piętro (możliwość wynajmu dwóch pięter – 643 m²).

  • Elastyczność: Możliwość połączenia lub podziału pokoi zgodnie z potrzebami najemcy.

  • Możliwość podziału piętra: Dzięki dwóm niezależnym wejściom i dwóm pionom sanitarnym, istnieje opcja wynajęcia tylko części kondygnacji.

  • Nowoczesne IT: Podniesione podłogi z floorboxami, pełne okablowanie strukturalne oraz światłowód (Orange/Vectra).


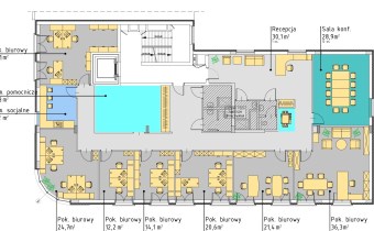
Układ i standard pomieszczeń (I Piętro):

Powierzchnia jest funkcjonalnie podzielona na strefy:

  • 7 pokoi biurowych o różnym przeznaczeniu i wielkości.

  • Sale konferencyjne: Większe pomieszczenia idealne na spotkania i szkolenia.

  • Serwerownia: Klimatyzowana, z dodatkowymi drzwiami antywłamaniowymi i alarmem (na II piętrze).

  • Kuchnia: Wydzielone pomieszczenie z zabudową, wyposażone w zmywarkę oraz mikrofalówkę.

  • Węzeł sanitarny: 4 toalety rozmieszczone w dwóch pionach.

  • Bezpieczeństwo: Przed wejściem do biura znajduje się szklany korytarz z zainstalowaną kontrolą dostępu i systemem alarmowym.


Budynek i udogodnienia:

Kameralny biurowiec z 2011 roku, charakteryzujący się spokojną atmosferą i prestiżowym sąsiedztwem:

  • Dwa wejścia: Główne od ul. Puławskiej oraz od strony dziedzińca Domu Kultury.

  • Instalacje: Klimatyzacja, wentylacja mechaniczna, otwierane okna.

  • Parking: Garaż podziemny na poziomie -1 (15 miejsc na platformach).

  • Ochrona: Fizyczna ochrona budynku w godzinach 7:00–19:00 (pon-pt) oraz całodobowy monitoring.

  • Odświeżenie: Na życzenie najemcy właściciel wymieni wykładziny na nowe.

Lokalizacja – Mokotów (Wierzbno):

Bezpośrednio przy głównej arterii miasta, co zapewnia świetną ekspozycję. W pobliżu Metro Racławicka, linie tramwajowe i autobusowe. Sąsiedztwo Parku Dreszera oraz licznych lokali gastronomicznych zapewnia komfort pracownikom.


Koszty najmu i warunki:

  • Czynsz najmu: 55 zł/m² netto

  • Opłata eksploatacyjna: 25 zł/m² netto

  • Łącznie (za 321,5 m²): 25 720 zł netto + media (energia, woda, ogrzewanie wg liczników)

  • Garaż: 300 zł netto / miejsce

  • Kaucja: 2-miesięczny czynsz + opłaty

  • Negocjacje: Cena podlega negocjacjom w zależności od zakresu prac dostosowawczych i długości umowy.

    W rzutach dołączony jest układ pomieszczeń piętra 2

Zapraszam do kontaktu w celu umówienia prezentacji!

Kontakt

EMILIA M. SZYMAŃSKA
 660 865 803
 eszymanska@vestrahouse.pl

Nota prawna

Opis oferty zawarty na stronie internetowej sporządzany jest na podstawie oględzin nieruchomości oraz informacji uzyskanych od właściciela, może podlegać aktualizacji i nie stanowi oferty określonej w art. 66 i następnych K.C.

Szczegóły

Symbol oferty VES-LW-4611
Powierzchnia 321,50 m²
Powierzchnia użytkowa 321,50 m²
Piętro 1
Rodzaj budynku biurowo-usługowy
Opłaty wg liczników prąd
Liczba pięter w budynku 5
Typ kaucji dwumiesięczna
Przeznaczenie lokalu biurowy
Winda tak

Podobne oferty

Lokal do wynajęcia - Warszawa, Mokotów, Służewiec, Obrzeżna
lokal do wynajęcia - Warszawa, Mokotów, Służewiec, Obrzeżna

VES-LW-4462

Warszawa, Mokotów, Służewiec,…
lokal do wynajęcia

183,86 m²

19 305
105,00 zł/m2
Dodaj
do notatnika
Lokal do wynajęcia - Warszawa, Mokotów, Sielce, Ludwiga van Beethovena
lokal do wynajęcia - Warszawa, Mokotów, Sielce, Ludwiga van Beethovena

VES-LW-4458

Warszawa, Mokotów, Sielce,…
lokal do wynajęcia

171,00 m²

18 000
105,26 zł/m2
Dodaj
do notatnika
Lokal do wynajęcia - Warszawa, Mokotów, Stegny, al. Aleja gen. Władysława Sikorskiego
lokal do wynajęcia - Warszawa, Mokotów, Stegny, al. Aleja gen. Władysława Sikorskiego

VES-LW-4440

Warszawa, Mokotów, Stegny,…
lokal do wynajęcia

430,00 m²

17 300
40,23 zł/m2
Dodaj
do notatnika
Lokal do wynajęcia - Warszawa, Mokotów, Stegny, al. Aleja gen. Władysława Sikorskiego
lokal do wynajęcia - Warszawa, Mokotów, Stegny, al. Aleja gen. Władysława Sikorskiego

VES-LW-4439

Warszawa, Mokotów, Stegny,…
lokal do wynajęcia

256,00 m²

19 500
76,17 zł/m2
Dodaj
do notatnika

Napisz do nas

Proszę wypełnić to pole
Proszę wypełnić to pole
Proszę wypełnić to pole
Proszę wypełnić to pole
Trwa wysyłanie...

Ta strona wykorzystuje pliki cookies w celach statystycznych oraz w celu dostosowania naszych serwisów do indywidualnych potrzeb klientów. Zmiany ustawień dotyczących plików cookie można dokonać w dowolnej chwili modyfikując ustawienia przeglądarki. Korzystanie z tej strony bez zmian ustawień dotyczących cookies oznacza, że będą one zapisane w pamięci urządzenia.

rozumiem