Warszawa, Mokotów, Puławska

Mieszkanie na sprzedaż

3 pokoje 4 piętro 45,40 m2 16 299,56 zł/m2

740 000 zł

Emilia M. Szymańska

Doradca

Opis nieruchomości

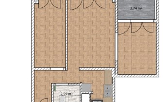
Trzypokojowe mieszkanie z balkonem i loggią przy ul. Puławskiej

Na sprzedaż funkcjonalne, trzypokojowe mieszkanie zlokalizowane przy ulicy Puławskiej – w świetnie skomunikowanej części Warszawy, w sąsiedztwie metra, terenów rekreacyjnych oraz pełnej infrastruktury miejskiej.

UKŁAD POMIESZCZEŃ:

  • Salon – ok. 15 m² z wyjściem na balkon (ok. 1 m²)

  • Pokój – ok. 9 m²

  • Sypialnia – ok. 10 m² z bezpośrednim wyjściem na loggię (ok. 4 m²)

  • Kuchnia – ok. 4 m²

  • Łazienka – ok. 2,5 m²

  • Przedpokój – ok. 4 m²

W mieszkaniu na podłogach położona jest mozaika dębowa, która nadaje wnętrzu ciepły, klasyczny charakter.

LOKALIZACJA:

Idealna lokalizacja dla osób ceniących wygodę i szybki dostęp do komunikacji miejskiej:

  • Metro Wierzbno

  • Metro Wilanowska

  • Park Arkadia

  • Park Wodny Warszawianka
    W okolicy również liczne sklepy, punkty usługowe i miejsca do rekreacji.

    Spółdzielcze prawo własności, możliwość założenia KW


Kontakt

EMILIA M. SZYMAŃSKA
 660 865 803
 eszymanska@vestrahouse.pl


 

Nota prawna

Opis oferty zawarty na stronie internetowej sporządzany jest na podstawie oględzin nieruchomości oraz informacji uzyskanych od właściciela, może podlegać aktualizacji i nie stanowi oferty określonej w art. 66 i następnych K.C.

Szczegóły

Symbol oferty VES-MS-4609
Powierzchnia 45,40 m²
Powierzchnia użytkowa 45,40 m²
Liczba pokoi 3
Piętro 4
Rodzaj budynku budynek wielorodzinny
Liczba pięter w budynku 13
Stan lokalu do adaptacji
Stan prawny Spółdzielcze własnościowe
Mies. czynsz admin. 700 PLN
Okna PCV
Balkon jest
Liczba balkonów 2
Winda tak

Pomieszczenia

Wysokość pomieszczeń 2,50 m
Powierzchnia pokoi 15,10,9 m2
Podłogi pokoi mozaika drewniana
Rodzaj kuchni oddzielna ciemna
Powierzchnia kuchni 4 m2
Podłoga kuchni panele
Typ łazienki razem z wc
Liczba łazienek 1
Powierzchnia łazienki 3 m2
Podłoga łazienki panele
Liczba przedpokoi 1
Powierzchnia przedpokoi 5 m2
Podłoga przedpokoi mozaika drewniana

Podobne oferty

Mieszkanie na sprzedaż - Warszawa, Praga-Południe, Gocław, Konrada Guderskiego
mieszkanie na sprzedaż - Warszawa, Praga-Południe, Gocław, Konrada Guderskiego

VES-MS-4626

Warszawa, Praga-Południe,…
mieszkanie na sprzedaż

3 pokoje 61,60 m²

834 000
13 538,96 zł/m2
oferta na wyłączność
Dodaj
do notatnika
Mieszkanie na sprzedaż - Warszawa, Śródmieście, Mokotowska
mieszkanie na sprzedaż - Warszawa, Śródmieście, Mokotowska

VES-MS-4605

Warszawa, Śródmieście,…
mieszkanie na sprzedaż

2 pokoje 35,58 m²

849 000
23 861,72 zł/m2
Dodaj
do notatnika
Mieszkanie na sprzedaż - Warszawa, Praga-Południe, Jana Nowaka - Jeziorańskiego
mieszkanie na sprzedaż - Warszawa, Praga-Południe, Jana Nowaka - Jeziorańskiego

VES-MS-4591

Warszawa, Praga-Południe,…
mieszkanie na sprzedaż

1 pokój 37,70 m²

765 000
20 291,78 zł/m2
Dodaj
do notatnika
Mieszkanie na sprzedaż - Warszawa, Bielany, Bolesława Podczaszyńskiego
mieszkanie na sprzedaż - Warszawa, Bielany, Bolesława Podczaszyńskiego

VES-MS-4588

Warszawa, Bielany, Bolesława…
mieszkanie na sprzedaż

2 pokoje 35,50 m²

740 000
20 845,07 zł/m2
Dodaj
do notatnika
PLN
PLN
PLN
PLN
PLN
PLN
PLN
%
PLN
PLN
PLN

PLN

Uwaga: mogą wystąpić dodatkowe opłaty za założenie księgi wieczystej oraz ustanowienie hipoteki.

Dane:

PLN
%

Wynik:

PLN
pierwsza rata
ostatnia rata

Napisz do nas

Proszę wypełnić to pole
Proszę wypełnić to pole
Proszę wypełnić to pole
Proszę wypełnić to pole
Trwa wysyłanie...

Ta strona wykorzystuje pliki cookies w celach statystycznych oraz w celu dostosowania naszych serwisów do indywidualnych potrzeb klientów. Zmiany ustawień dotyczących plików cookie można dokonać w dowolnej chwili modyfikując ustawienia przeglądarki. Korzystanie z tej strony bez zmian ustawień dotyczących cookies oznacza, że będą one zapisane w pamięci urządzenia.

rozumiem